1.1、構件概況
文化館主樓結構在局部區域中的負一層四層(-6.000+17.522)分別設置了鋼骨柱(H500×250×20×30、H500×350×20×30二種型號);鋼骨梁(H500×350×20×30)及鋼骨桁架(H800×300×20×30(D)
構件平面布置詳見下圖示意:
1.2、連接節點
分層鋼骨柱拼接處采用焊接連接。
鋼骨柱上的懸臂梁與其連接的鋼骨梁之間采用栓焊混合連接。
栓接時采用 10.9S級高強度螺栓連接副。
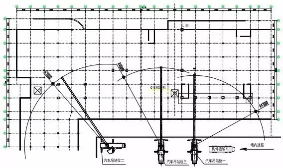
1.3、塔機參數
施工現場前期已安置 QTZ40塔機三臺其站位、工作半徑與起重量參數詳見下圖:

2.1施工難點
(1)本工程主體結構的東、西兩側距作業點較遠,北側為場外道路并有一路高壓供電線路因此該三方向在施工中均無法使用。
2)現場安置的三臺塔機由于安置站位、工作幅度、起重量的限制,故不能滿足各分層預制鋼構件運輸車輛的卸貨及吊裝作業。
3)三層樓面 13-4/G-4 D-4軸位的鋼骨桁架由于跨度:22.1m、高度:5.1m、總量重:22.723t、預制件重量 3.766t、組拼件重量 7.532t。現場塔機吊不動,而由于作業幅度近 70m如采用超大型汽車吊進行吊裝則費用太高。
2.2施工對策
(1)構件進場與卸貨
根據現場土建施工進度,將鋼柱、梁按各樓層的安裝數量分批運現場。
運輸車輛進場后停于主體建筑的南側道路,采用汽車吊進行卸貨。
(2)鋼骨柱、梁吊裝
構件由卸貨堆場二次堆場的轉運由汽車吊進行吊運作業。
13-4/ G-4、 D-4軸位;4-4/ B-4、 C-4軸位;6-4/ B-4、 C-4軸位的鋼骨柱由塔機從二次堆場起吊各安裝點進行吊裝作業
余鋼骨柱、梁由汽車吊分別進行吊裝作業。
(3)鋼骨桁架吊裝
鋼桁架的斜腹梁在廠內預制成單件;上、下弦鋼梁在廠內將其分別預制成兩個分段,吊運現場樓面再組拼成整根鋼梁后再進行散拼法安裝,以降低單件吊裝量。既將上、下弦桿、腹桿分別進行吊裝
組拼構件的地面卸貨、二次吊運三層樓面采用 220t汽車吊;
組拼構件采用滾筒加電動卷揚機進行水平轉運。
組拼構件的安裝分別采用人字扒桿進行吊裝作業(起升高度 8.4m)。
3.1組織管理
我方將指派具有類似工程施工經驗的人員擔任施工領班。
按總包規定的進度計劃和安排無條件的組織安裝施工,所有人員在工程進行過程中,隨時接受業主、監理及總包的管理、檢查與監督。
3.2文明施工
按文明施工的要求進行施工作業,帽、三級箱等管理按總包的規定要求執行。
3.3勞動力配置
為確保的完成本次吊裝工程,將選派職業道德素質高,技術強,精干、的并具有多年施工經驗的人員投入施工。
在施工過程中將根據施工進度及時調整作業人員。
各工種勞動力配置如下:
(1)安裝工 5名
(2)起重工 4名
(3)電焊工 3名
(4)輔助工 2名
3.4技術準備
施工前組織各工種施工人員提前學習相關技術規范和南京地區的有關技術規定,熟悉圖紙,明確施工內容、技術要求、質量標準、工期目標及規定。
工人進場后,對其進行有關法制、、防火和文明施工教育,學習有關施工規范、操作規程,并組織進行質量標準學習,進行技術作業交底。
3.5、施工機具部署
所選用的機械、設備,必須經過專門檢修,確保在施工過程中能夠正常運行。
本次吊裝施工施工主要機具見下表:
4.1、構件參數
構件基本參數及吊裝選用詳見下表:
附表:4.1 構件參數與吊裝設備
4.2、安裝流程
4.2.1、鋼骨柱吊裝流程
測放柱軸線、標高參照線→分別吊裝各柱,用附加節點板臨時連接并支撐→分別調校各柱垂直度、標高、間距→分別焊接各柱間的連接焊縫→焊縫進行無損檢測→檢驗并交付土建施工
4.2.2、鋼骨梁吊裝流程
測放梁軸線、標高參照線→分別吊裝各柱,用附加節點板臨時連接并支撐→分別調校各柱垂直度、標高、間距→分別吊裝各柱間的鋼骨梁,在梁間腹板連接處用節點板進行連接經調校后緊固→分別焊接各柱間的連接焊縫→分別焊接各梁間的翼板連接焊縫→焊縫進行無損檢測→檢驗并交付土建施工
4.2.3、鋼骨桁架吊裝流程
測放梁軸線、標高參照線→構件吊運三層樓面→構件平移組拼位置→下(上)弦分段鋼梁組拼焊接→下弦鋼桁架梁吊裝、調校、緊固、焊接→上弦鋼桁架梁吊裝、調校、緊固、焊接→鋼桁架梁腹桿吊裝、調校、緊固、焊接→焊縫進行無損檢測→檢驗并交付土建施工
4.3、汽車吊站位與作業范圍
4.3.1、站位
用于各層鋼構件卸貨及吊裝的汽車吊選用詳見本文:表 4.2
當采用汽車吊進行卸貨及吊裝各部位的構件時其分別站位于(T-D2)軸外側場地。
汽車吊站位詳見下圖:

4.3.2、適用范圍
(1)汽車吊站位一:適用于各層鋼構件的卸貨及 13-4軸 18-4軸區域負一層 4層鋼構件轉運和吊裝。
(2)汽車吊站位二:適用于 4-4軸 9-4軸區域各層鋼構件的轉運和吊裝。
(3)汽車吊站位三: 13-4軸 18-4軸區域 4層鋼骨桁架構件的卸貨、轉運和吊裝。
4.4、吊裝方法
4.4.1、汽車吊吊裝
采用汽車吊吊裝其工作范圍內相關樓層各區域的鋼骨柱、梁時分別站位于位置一及位置二直接進行構件的定位吊裝作業(除 4.3.2條界定構件及 13-4軸鋼骨桁架梁)。
4.4.2、汽車吊與塔機相結合吊裝
采用汽車吊與塔機相結合的吊裝方式時先由汽車吊將構件吊運塔機的工作范圍內再由塔機進行構件的定位吊裝作業(13-4/ G-4、 D-4軸位;4-4/ B-4、 C-4軸位;6-4/ B-4、 C-4軸位構件)。
4.4.3、汽車吊與人字扒桿相結合吊裝
當采用由 220t汽車吊吊裝鋼骨桁架梁(13-4/ D-4 G -4柱間)時其站位于位置三,將構件吊運三層樓面(B-4、C-4軸與 11-4、12-4軸區域)再由人工平移后采用人字扒桿進行鋼骨桁架梁的組拼吊裝。
4.5、人字扒桿吊裝
4.5.1、吊具組件

4.5.2、吊裝計算書
(1)計算簡圖
附圖: 4.5.2計算簡圖
(2)計算書

4.6、鋼桁架梁吊裝
4.6.1、吊裝方法
13-4/D-4 G-4軸柱間鋼骨桁架梁采用分件吊裝法安裝。
吊裝順序詳見本文第 4.2 .3條文。
4.6.1、卸貨與二次轉運
先由汽車吊將二根上、下弦主梁的四個分段預制鋼梁由地面吊運三層樓面的 C-4軸 D-4軸與 11-4軸 12-4軸區域的二次停放點存放。
吊裝作業前再由安置在該樓面的捲揚機和滾筒將其水平拖運安裝軸位下方分別進行組拼、焊接。
上、下弦主梁的四個分段預制鋼梁采用立式組拼法進行組拼、焊接。
4.6.2、扒桿安置
扒桿構件分別由塔機吊運三層樓面作業點后進行組裝。
扒桿管腳位于鋼骨桁架位置的跨度中部左側 1.5m處,扒桿管腳開度 5m、扒桿頂部前傾變幅范圍 1.0 1.5m。
扒桿起豎在其前正后方分別設三根Φ 20╳35m主纜風繩扒桿頂部,正前方設二根Φ 16次纜風繩,主、次纜風繩的下端分別用鋼絲繩固定在砼柱下端。
為便于扒桿變幅分別在主、次纜風繩的下部連接變幅倒鏈。
扒桿的上端掛一起重量為 10t的四門滑輪組,主吊鉤鋼絲繩由 2t電動卷揚機經扒桿上端四門滑輪組與吊鉤的四門滑輪組穿繞并固定。
電動卷揚機用鋼絲繩固定在砼柱下端。
扒桿起搬后分別調整主、次纜風使其受力一致。
扒桿安置示意見下圖:
圖: 4.6.2扒桿安置示意圖
4.6.3、構件水平運輸
鋼骨桁架構件在三層樓面的水平運輸采用一臺牽引力 1t的電動卷揚機為動力、以 2t滑輪為變位固定點、以Φ 50╳4 mm鋼管為托運滾筒分別進行水平運輸。
4.7主要工序施工方法與技術措施
4.7.1、準備工作
(1)與落實汽車吊、塔機等吊裝設備,檢查作業面。
(2)吊裝施工前,對結構的定位軸線、平面封閉角、柱位置軸線、標高參照點進行復測,合格后方能施工。
(3)檢查鋼構件上用于校正的軸線、標高參照線、點是非清晰、正確。
(4)檢查吊索、吊具。
(5)鋼骨柱起吊前搭好上柱頂的直爬梯,工作點搭設操作臺并設置護欄。
4.7.2、吊點選擇
(1)鋼骨柱采用二點綁扎法,吊點設在鋼骨柱上部吊耳處。
(2)鋼骨梁采用二點綁扎法,吊點分別設在距全長中點兩側端各200mm位置處。
(3)當鋼梁吊點采用鋼絲繩捆扎法時應在梁體上相應位置設置護角器。
4.7.3、吊裝注意事項
(1)鋼構件吊裝前其安裝部位的基礎、埋件、錨桿等必須檢驗合格,做了相應的標識,并辦理基礎中間交接手續。
(2)吊裝時作業區內應無其他工種作業,并建立區。
(3)鋼構件吊裝時應有專人指揮,起吊索具和卸具必須有足夠的系數,一般不小于 5~6倍,嚴格遵守吊裝的規定。
(4)鋼構件吊裝宜緩慢進行,就位時由操作人員扶正,用過渡螺栓穿過連接板將連接處臨時緊固后方可使起重機脫鉤。
(5)吊裝所用的自制索具應由吊裝技術人員復核,必須符合吊裝要求。
4.7.4鋼骨柱調校
(1)在安裝過程中各層鋼骨柱標高和垂直度偏差的控制和調整,可用吊耳間的微型專用千斤頂進行調校控制,另外還可利用焊接收縮來調整垂直度偏差。
(2)垂直度偏差可采用用兩臺經緯儀或磁力線砣在鋼柱軸線的相鄰兩側同時對準鋼骨柱兩個側面上、下端的標記測控。
(3)安裝鋼骨柱時,需要重復觀測糾正其標高和垂偏值,鋼骨柱吊裝就位后,先作臨時連接,上節鋼骨柱柱底線對準下節柱的基準軸線,然后觀測糾正其垂直偏差,再進行螺栓固定和定位焊接,間隙處尺寸調整值不大于 5mm。
4.7.5、鋼梁安裝
(1)安裝時將鋼梁吊所安裝的軸線處與鋼柱懸臂梁進行組對連接。
(2)吊裝前設好繩,方便施工人員高空操作。鋼梁吊裝宜緩慢進行,吊升過鋼柱頂后由操作人員扶正就位,用螺栓穿過連接板與節點臨時固定,并進行校正
(3)鋼梁校正后應及時進行高強螺栓緊固, 在進行連接固定時,嚴禁將高強螺栓用錘打入孔中,應用過渡銷行過渡,再安裝高強螺栓。
4.7.6安裝質量標準
鋼骨柱安裝主要檢驗項目允許偏差見附表 7 .3 .7
表 7 .3 .7
5.1工期目標
(1)預定每四天完成一個樓層的鋼骨柱、梁的吊裝和焊接施工。
(2)預定10完成鋼骨桁架的吊裝和焊接施工。
5.2工期保證措施
(1)選派精干、的人員投入施工,并根據工程進展情況及時調整作業人員和作業時間。
(2)強化現場管理,及時協調組織工序中間交接,使現場施工組織、工序搭接化,保證關鍵節點按期實現。
(3)加強質量管理,在質量創優的同進,以質優來避免工程的返工對施工工期的延誤。
(4)加強施工管理,杜絕發生事故。